Szafka do rozdzielacza, podtynkowa 335-615-705-110-175
Marka
Symbol
SZP-0
Kod producenta
5901095652387
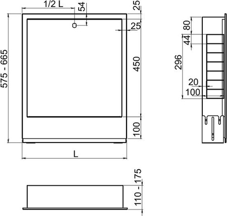
Głębokość szafki [mm]
110-175
Kod kreskowy
opakowanie z kodem kreskowym umożliwiającym sprzedaż detaliczną
Maksymalna liczba obwodów rozdzielacza w szafce (R)
2
Materiał korpusu/materiał wykonania
blacha ocynkowana 0,8mm, wycinana laserowo
Szerokość szafki [mm]
380
Szerokość wnętrza szafki [mm]
335
Wysokość szafki [mm]
576-665
Kolor
Biały
Ilośc sztuk na palecie
32
Zapytaj o produkt
Napisz swoją opinię







